Wohnimmobilie > Doppelhaushälfte
Zu Verkaufen

OSTERRÖNFELD: Handwerkertraum oder Bauherren-Projekt - Doppelhaushälfte auf großem Grundstück

24783 Osterrönfeld
135.000 €

380646
1973
80 m²
832 m²
3
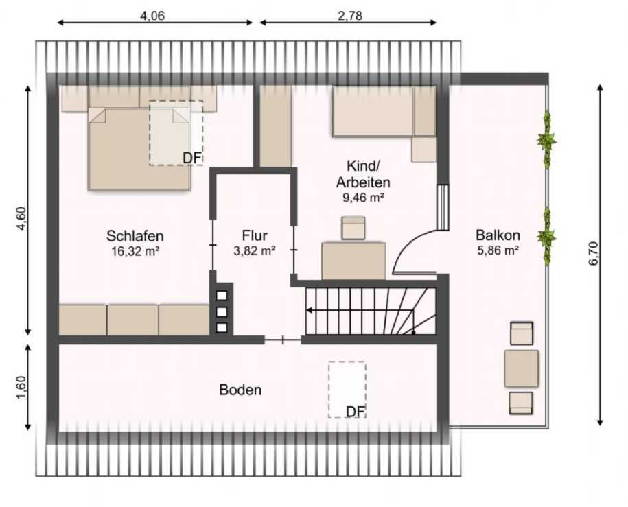
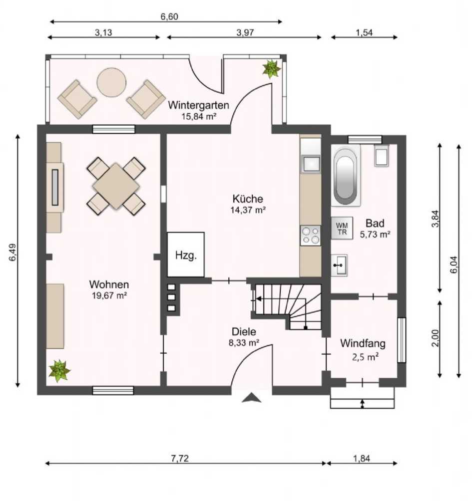
Diese massiv errichtete Doppelhaushälfte mit Teilkeller befindet sich auf einem gut geschnittenen, 832 m² großen Grundstück in Osterrönfeld. Die Wohn- und Nutzfläche von insgesamt ca. 94 m² verteilt sich auf drei Zimmer, eine Küche, ein Wannenbad, Flur, Abstellraum sowie einen praktischen Wintergarten mit direktem Zugang zum Garten und zur gepflasterten Auffahrt. Im Dachgeschoss steht zudem ein Balkon mit südwestlicher Ausrichtung zur Verfügung – perfekt, um die Abendsonne zu genießen.

Ergänzt wird das Platzangebot durch ein weiteres Gebäude auf dem Grundstück, das sich – in hälftiger Teilung mit dem Nachbarn – ideal für Lagerzwecke nutzen lässt. Eine separate Doppelgarage bietet nicht nur Stellfläche für zwei Fahrzeuge, sondern könnte auch als kleine Werkstatt genutzt werden.

In den letzten Jahren wurden nur punktuell Sanierungsmaßnahmen vorgenommen: So wurde etwa die Außenwand des Badezimmers gedämmt, einige Fenster erneuert und die Nebeneingangstür ausgetauscht. Dennoch befindet sich das Haus insgesamt in einem deutlich renovierungs- bzw. sanierungsbedürftigen Zustand. Unter anderem sollten die restlichen Fenster sowie die Haustür ersetzt, die Elektrik überarbeitet und eine neue Heizungsanlage eingebaut werden. Das ursprüngliche Baujahr ist nicht bekannt, liegt aber mutmaßlich in der ersten Hälfte des 20. Jahrhunderts. Die beim Bauaktenarchiv einsehbaren Unterlagen betreffen den umfangreichen An- und Umbau aus dem Jahr 1972.

Neben der Sanierung bietet das Grundstück auch Potenzial für eine Neubebauung. Dank einer Grundflächenzahl (GRZ) von 0,4 ergibt sich eine bebaubare Fläche von etwa 330 m². Die mögliche Firsthöhe liegt – in Anlehnung an die Nachbarbebauung – bei ca. 9,3 m. Ein Bebauungsplan mit Einschränkungen besteht nicht.

Ein Objekt für handwerklich versierte Käufer oder Bauherren mit Weitblick – hier lässt sich mit Engagement und Ideenreichtum etwas Eigenes schaffen.

Vereinbaren Sie gern einen Besichtigungstermin oder fordern Sie weitere Informationen an – am besten direkt über die schriftliche Kontaktfunktion dieses Immobilienportals. So können wir Ihnen vorab alle relevanten Unterlagen zukommen lassen. Wir freuen uns darauf, Sie kennenzulernen!

Flächen

  • Wohnfläche: 80,2 m²
  • Grundstücksfläche: 832 m²
  • Nutzfläche: 94 m²
  • Zimmer insgesamt: 3
  • Schlafzimmer: 2
  • Badezimmer: 1
  • Stellplatzart: Garage, Freiplatz
  • Balkone: 1

Ausstattung

Zusammenfassung:

Doppelhaushälfte für Macher und Möglichmacher! Sie sind handwerklich begabt oder suchen ein Grundstück mit Potenzial für einen Neubau? Dann schauen Sie sich dieses Objekt genauer an! Ca. 94 m² Wohn- und Nutzfläche, Doppelgarage, Wintergarten und ein großzügiges Grundstück mit vielseitigen Optionen warten auf frischen Wind – ob durch Sanierung oder Neubau. Ruhige Lage, gute Infrastruktur, kein B-Plan – hier ist Raum für Ideen!

  • Heizungsart: Zentralheizung
  • Befeuerung: Öl
  • Bodenbelag: Fliesen, Laminat
  • Badausstattung: Badewanne, Fenster
  • Küche: Einbauküche
  • Ausrichtung Balkon/Terrasse: Süd-West
  • Kabel/Sat-TV
  • Rollläden

Zustand & Erschließung

  • Baujahr: 1973
  • Bauweise: Massiv
  • Dachform: Satteldach
  • Keller: teilweise unterkellert

Sonstiges

  • Immobilie ist verfügbar ab: nach Vereinbarung

Energieeffizenz

  • Energieausweis-Art: Bedarf
  • Energieausweis gültig bis: 25.06.2035
  • Warmwasser im Energieverbrauch enthalten: ja
  • Endenergiebedarf: 289,86 kWh/(m²*a)
  • Primärenergieträger: Öl
  • Energieeffizienzklasse: H
  • Energieausweis-Jahrgang: ab Mai 2014
  • Energieausweis-Gebäudeart: Wohngebäude

Preise

  • Kaufpreis: 135.000 €
  • Preise zuzüglich Mehrwertsteuer: nein
  • Käuferprovision: 3,57% vom Kaufpreis (inkl. MwSt.)

Lage und Infrastruktur

Die Immobilie befindet sich in zentraler Lage von Osterrönfeld, einer beliebten Gemeinde unmittelbar vor den Toren Rendsburgs. Die Kieler Straße ist eine gut angebundene Wohnstraße mit kurzer Entfernung zu allen Dingen des täglichen Bedarfs.

In fußläufiger Umgebung befinden sich diverse Einkaufsmöglichkeiten, Ärzte, Apotheken, Bäcker sowie gastronomische Angebote. Kindergärten und eine Grundschule sind ebenfalls direkt im Ort vorhanden und schnell erreichbar. Weiterführende Schulen sowie ein vielfältiges Freizeit- und Kulturangebot bietet die nahegelegene Stadt Rendsburg, die sowohl mit dem Auto als auch per Bus oder Fahrrad in wenigen Minuten zu erreichen ist.

Durch die direkte Nähe zur B202 sowie zur A210 besteht eine hervorragende Anbindung in Richtung Kiel, Schleswig und Flensburg. Der Rendsburger Bahnhof als Verkehrsknotenpunkt ist ebenfalls gut erreichbar und sorgt für optimale ÖPNV-Anbindung in alle Richtungen.

Die Umgebung lädt zudem zu ausgedehnten Spaziergängen oder Fahrradtouren entlang des Nord-Ostsee-Kanals ein, der sich nur wenige Minuten entfernt befindet. Auch Wassersportfreunde und Naturbegeisterte kommen in Osterrönfeld auf ihre Kosten.

Vielen Dank

Ich werde mich schnellst möglich bei dir melden und freue mich die Einzelheiten in einem persönlichem Gespräch mit dir zu besprechen.

Ben Koss