Wohnimmobilie > DG-Wohnung
Zu Vermieten

NÜBBEL: Großzügige 3-Zimmer-Dachgeschosswohnung mit zus. Studio im Spitzboden und Carportstellplatz

24809 Nübbel
800 €

386448
1998
86 m²
886 m²
3
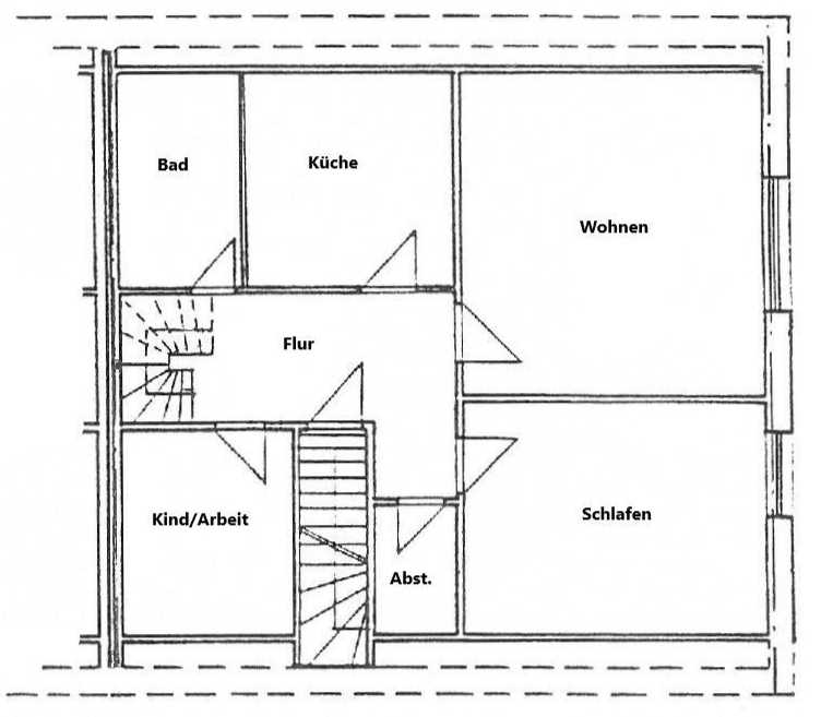
Diese gepflegte Dachgeschosswohnung zur Miete befindet sich in der rechten Haushälfte eines Doppelhauses aus dem Jahr 1997 und bietet auf ca. 86 m² Wohnfläche ein großzügiges und vielseitig nutzbares Zuhause. Die Wohnung erstreckt sich über das Dachgeschoss mit ausgebautem Spitzboden – ideal für Paare oder kleine Familien, die Wert auf Raum, Struktur und Flexibilität legen.

Der klassische Grundriss umfasst insgesamt drei Zimmer. Das helle, großzügige Wohnzimmer bildet den Mittelpunkt der Wohnung. Die separate Küche ist funktional gestaltet und bietet ausreichend Platz für eine Sitzecke. Das Schlafzimmer ist ruhig gelegen, ein weiteres Zimmer eignet sich flexibel als Kinder- oder Arbeitszimmer.

Der zum Studio ausgebaute Spitzboden eignet sich als zusätzlicher Wohn-, Arbeits- oder Hobbybereich und verleiht der Wohnung einen individuellen Charakter. Ebenfalls im Spitzboden befindet sich ein praktischer Abstellraum, der auch die eigene Gas-Zentralheizung beherbergt. Das Tageslicht-Duschbad ist hell gefliest und mit einem Waschmaschinenanschluss ausgestattet.

Die Wohnung verfügt über einen eigenen Zugang über das Treppenhaus. Küche und Bad sind hell gefliest, die Wohnräume mit Laminat ausgelegt, das Studio ist mit Teppichboden versehen. Für Ihr Fahrzeug steht ein Carport-Stellplatz zur Verfügung; dort angeschlossen ist ein gemeinschaftlich genutzter Abstellraum für Rasenmäher oder Fahrräder. Auf der nördlichen Giebelseite des Gebäudes findet sich ein kleiner Gartenbereich, der dieser Wohneinheit zugeordnet ist. Die Anmeldung sowie Abrechnung für Gas und Strom erfolgt durch den Mieter selbst; die Kosten sind nicht Bestandteil der in diesem Exposé aufgeführten Nebenkosten. 
Insgesamt überzeugt diese Wohnung durch ihren durchdachten Schnitt, den Maisonette-Charakter und die angenehme Größe.

Buchen Sie am besten gleich Ihren persönlichen Besichtigungstermin. Nutzen Sie dafür bitte unbedingt die schriftliche Kontaktaufnahmefunktion hier im Immobilienportal unter Angabe Ihrer vollständigen Kontaktdaten. Anfragen beantworten wir in der Regel innerhalb von 24 Stunden. Falls Sie keine Antwort erhalten, prüfen Sie bitte auch den Spam-Ordner Ihres E-Mail-Postfachs.

Flächen

  • Wohnfläche: 86,26 m²
  • Grundstücksfläche: 886 m²
  • Zimmer insgesamt: 3
  • Schlafzimmer: 2
  • Badezimmer: 1
  • Etage: 1
  • Stellplatzart: Carport

Ausstattung

  • Art der Ausstattung: Standard
  • Heizungsart: Zentralheizung
  • Befeuerung: Gas
  • Bodenbelag: Fliesen, Teppich, Laminat
  • Badausstattung: Dusche, Fenster
  • Küche: Einbauküche
  • Kabel/Sat-TV

Zustand & Erschließung

  • Baujahr: 1998
  • Bauweise: Massiv
  • Dachform: Satteldach

Sonstiges

  • Immobilie ist verfügbar ab: sofort
  • Haustiere erlaubt: nein

Energieeffizenz

  • Energieausweis-Art: Verbrauch
  • Energieausweis gültig bis: 07.01.2036
  • Energieverbrauchskennwert: 82,66 kWh/(m²*a)
  • Warmwasser im Energieverbrauch enthalten: ja
  • Primärenergieträger: Gas
  • Energieeffizienzklasse: C
  • Energieausweis-Jahrgang: ab Mai 2014
  • Energieausweis-Gebäudeart: Wohngebäude

Preise

  • Kaltmiete: 800 €
  • monatl. Betriebs-/Nebenkosten: 120 €
  • Preise zuzüglich Mehrwertsteuer: nein

Lage und Infrastruktur

Die Immobilie befindet sich in ruhiger Wohnlage der Gemeinde Nübbel, direkt angrenzend an die Kreisstadt Rendsburg. Das Umfeld ist geprägt von gepflegter Einfamilienhausbebauung, wenig Durchgangsverkehr und einer angenehm entspannten Nachbarschaft – ideal für alle, die ruhig wohnen und dennoch stadtnah bleiben möchten.

Infrastruktur
Rendsburg mit seiner vollständigen Infrastruktur liegt nur wenige Minuten entfernt. Einkaufsmöglichkeiten, Ärzte, Schulen, Kindergärten sowie gastronomische Angebote sind schnell erreichbar. Auch kleinere Versorgungsangebote befinden sich im nahen Umfeld und ergänzen den alltäglichen Bedarf.

Natur & Freizeit
Die Umgebung bietet vielfältige Möglichkeiten für Spaziergänge, Radtouren und Erholung im Grünen. Felder, Wiesen und kleinere Waldflächen prägen das Ortsbild und machen Nübbel besonders attraktiv für Naturfreunde. 

Verkehrsanbindung
Die Verkehrsanbindung ist sehr gut: Rendsburg ist in wenigen Minuten erreicht, ebenso die Bundesstraßen B77 und B202. Die A7 Richtung Hamburg oder Flensburg ist ebenfalls gut erreichbar. Der Bahnhof Rendsburg bietet zudem eine komfortable Anbindung an den regionalen und überregionalen Bahnverkehr.

Vielen Dank

Ich werde mich schnellst möglich bei dir melden und freue mich die Einzelheiten in einem persönlichem Gespräch mit dir zu besprechen.

Ben Koss