Wohnimmobilie > Mehrfamilienhaus
Zu Verkaufen

NEUMÜNSTER - 8 Einheiten + Hinterhaus – Kapitalanlage mit Potenzial im Innenstadtbereich

24534 Neumünster
549.000 €

379485
1950
412 m²
618 m²
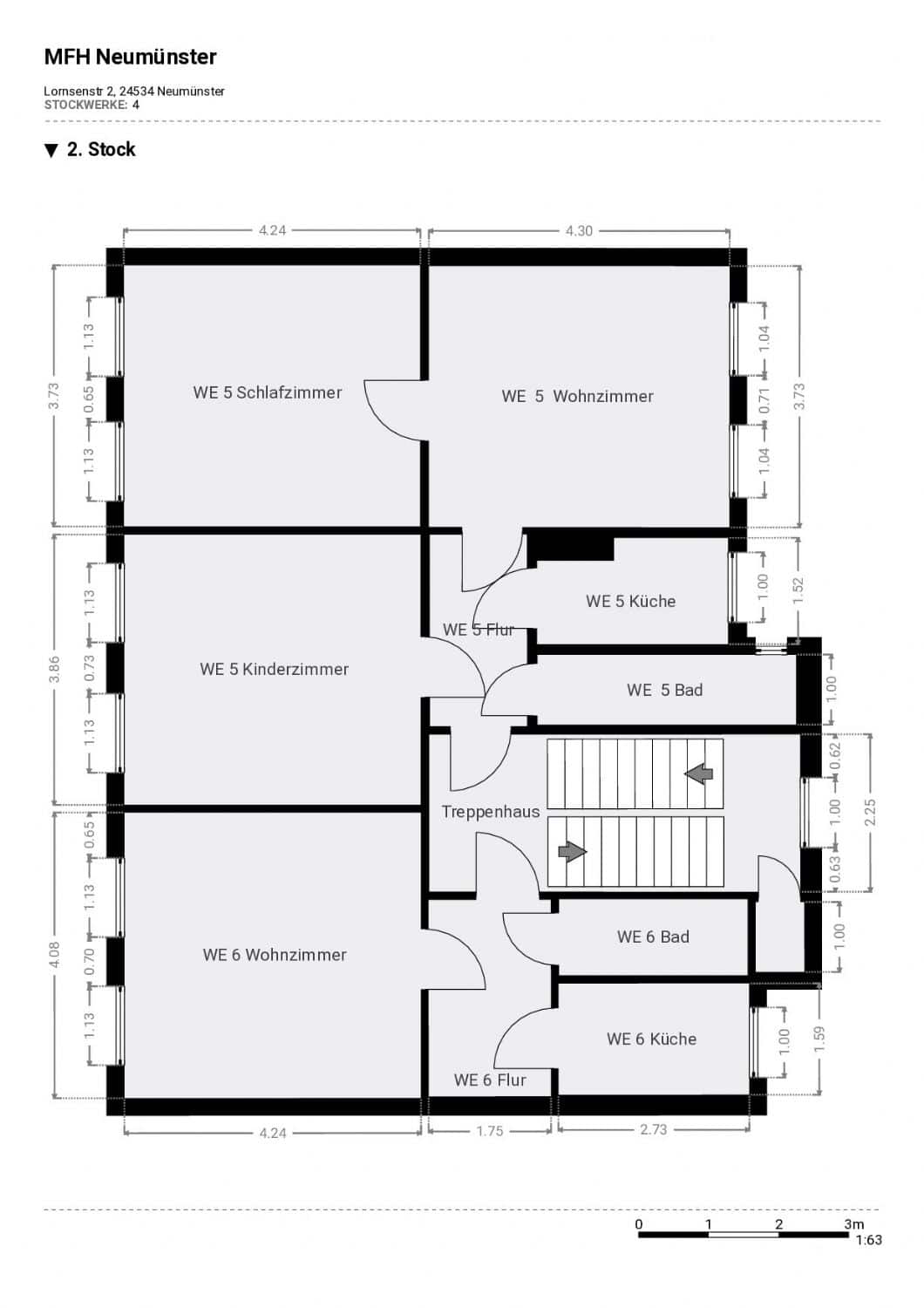
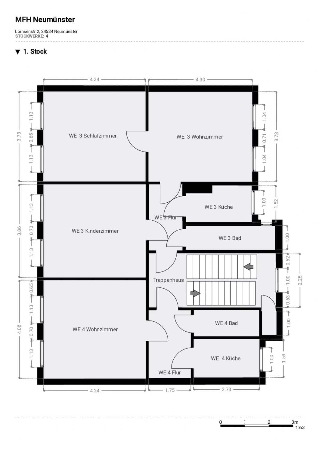
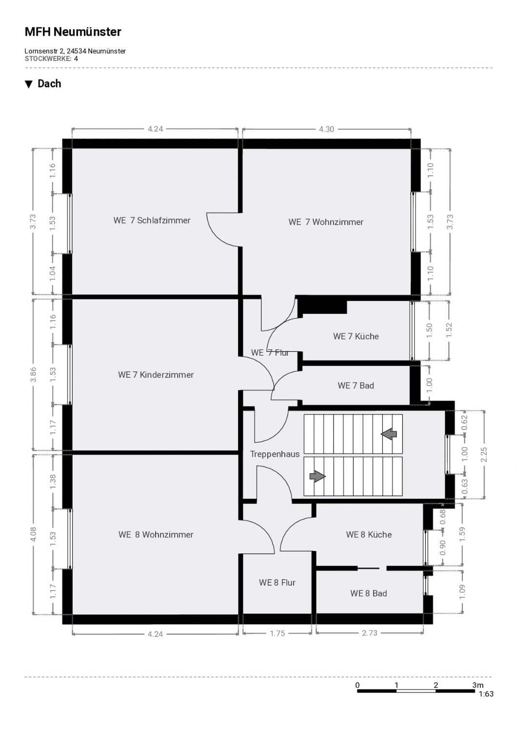
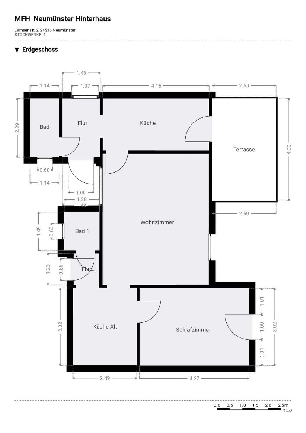
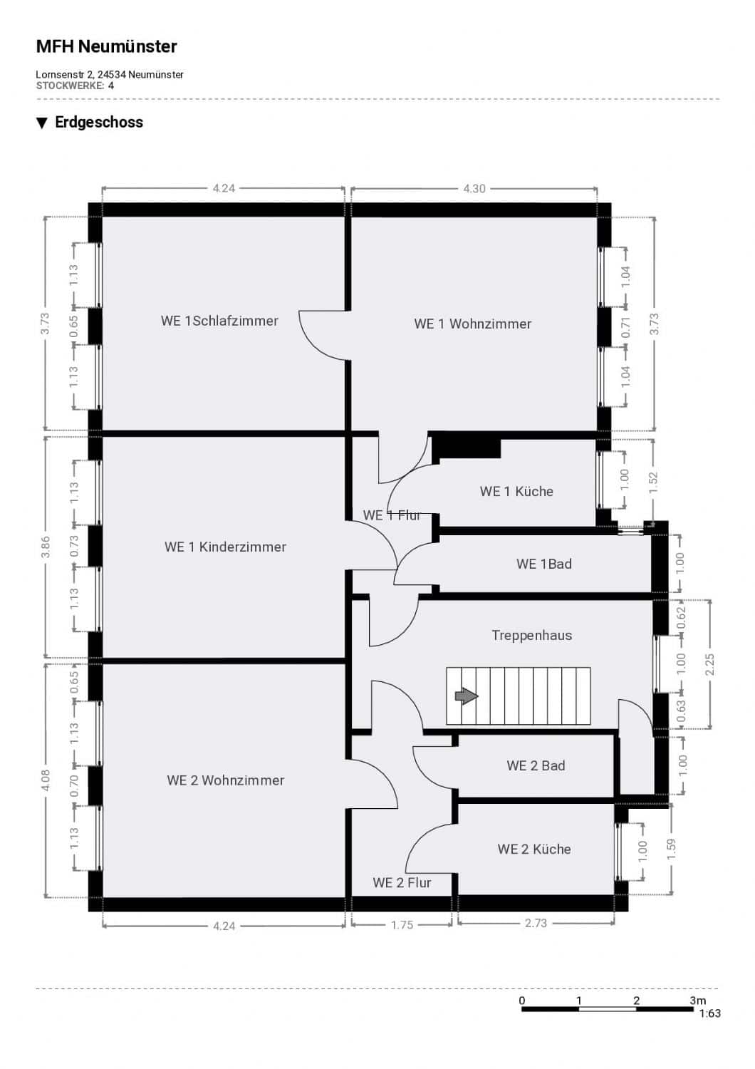
Mitten im Herzen von Neumünster befindet sich dieses voll vermietete Mehrfamilienhaus mit insgesamt acht Wohneinheiten und einem zusätzlichen, separaten Hinterhaus. Das ursprüngliche Baujahr ist nicht bekannt, der Wiederaufbau des Objekts erfolgte jedoch um 1950. Die Gesamtwohnfläche beläuft sich auf ca. 412 m², verteilt auf ein Grundstück mit rund 618 m² Fläche.

Die Wohnungsgrößen variieren zwischen ca. 30 m² und ca. 60 m² im Haupthaus, ergänzt durch eine ca. 62 m² große Einheit im Hinterhaus. Die jährliche Kaltmiete liegt derzeit bei insgesamt 43.872  Euro, was dieses Objekt auch unter Renditegesichtspunkten interessant macht. Straßenseitig sind die Wohnungen mit Außenrollläden ausgestattet; in einzelnen Fällen besteht zudem noch Spielraum für Mieterhöhungen.

In den letzten Jahren wurden bereits verschiedene Maßnahmen zur Werterhaltung und Verbesserung durchgeführt: So wurde unter anderem das Treppenhaus entkernt (Putz entfernt), die Fassade des Hinterhauses instandgesetzt und das Dach ebendort abgedichtet. Die Abwasserleitungen wurden erneuert, ebenso das Eingangspodest des Haupthauses. Vier Wohnungen im Haupthaus sowie die Einheit im Hinterhaus wurden renoviert – mit neuen Bodenbelägen, frischer Wandfarbe, teilweise überarbeiteten Elektrikinstallationen und ausgetauschten Heizkörpern. Auch einzelne Fliesenarbeiten wurden bereits vorgenommen, das Duchbad in einer der Dachgeschosswohnungen wurde komplett saniert.

Gleichwohl bietet das Gebäude weiteres Entwicklungspotenzial: Der Putz im Treppenhaus muss noch neu aufgebracht werden, und die zentrale Stromverteilung im Haus ist überarbeitungsbedürftig. Ebenso sollte bei zukünftigen Mieterwechseln eine sukzessive Modernisierung der noch nicht renovierten Wohnungen eingeplant werden – etwa durch neue Bodenbeläge, moderne Bäder und Küchen sowie ggf. den Austausch der Fenster.

Kurzum: Ein voll vermietetes Mehrparteienhaus in zentraler Lage mit stabilen Einnahmen und gleichzeitig klar umrissenem Sanierungsbedarf – eine spannende Gelegenheit für Investoren mit Weitblick.

Vereinbaren Sie gleich einen Besichtigungstermin oder fordern Sie weitere Informationen an. Nutzen Sie dafür bitte die schriftliche Kontaktaufnahme hier im Immobilienportal. Auf diese Weise können wir Ihnen im Voraus alle relevanten Unterlagen zukommen lassen. Wir freuen uns darauf, Sie kennenzulernen.

Flächen

  • Wohnfläche: 412 m²
  • Grundstücksfläche: 618 m²
  • Vermietbare Fläche: 412 m²
  • Etagen: 4

Ausstattung

Zusammenfassung:

8 Wohneinheiten + separates Hinterhaus

Ca. 412 m² Wohnfläche

Grundstücksgröße: ca. 618 m²

Voll vermietet

Jahreskaltmiete: 43.872  Euro

Wohnungsgrößen: ca. 30–60 m², Hinterhaus ca. 62 m²

Straßenseitig Außenrollläden

Teilweise Mieterhöhungspotenzial

Innenstadtlage Neumünster

  • Heizungsart: Fernheizung
  • Befeuerung: Fernwärme
  • Bodenbelag: Fliesen, Teppich, Laminat
  • Rollläden

Zustand & Erschließung

  • Baujahr: 1950
  • Zustand: sanierungsbedürftig
  • Keller: voll unterkellert

Sonstiges

  • Immobilie ist verfügbar ab: nach Vereinbarung
  • zurzeit vermietet: ja

Energieeffizenz

  • Energieausweis-Art: Verbrauch
  • Energieausweis gültig bis: 07.09.2027
  • Energieverbrauchskennwert: 257,6 kWh/(m²*a)
  • Warmwasser im Energieverbrauch enthalten: ja
  • Primärenergieträger: Fernwärme
  • Energieeffizienzklasse: H
  • Energieausweis-Jahrgang: ab Mai 2014
  • Energieausweis-Gebäudeart: Wohngebäude

Preise

  • Kaufpreis: 549.000 €
  • Preise zuzüglich Mehrwertsteuer: nein
  • Käuferprovision: 3,57% vom Kaufpreis (inkl. MwSt.)
  • Aktuelle Mieteinnahmen pro Monat: 43.872 €

Lage und Infrastruktur

Attraktive Lage im Herzen Schleswig-Holsteins: Dieses Mehrfamilienhaus profitiert von einer zentralen Lage in Neumünster, einer kreisfreien Stadt mit rund 80.000 Einwohnern. Die ausgezeichnete Infrastruktur und die optimale Verkehrsanbindung machen die Immobilie besonders attraktiv. Der Fernbahnhof ist schnell erreichbar, und die nahegelegene Autobahn A7 sorgt für eine hervorragende Verbindung zu den umliegenden Regionen und Städten. Sowohl mit dem Auto als auch mit öffentlichen Verkehrsmitteln ist die Immobilie bestens erreichbar – ein Vorteil für Mieter und Investoren gleichermaßen.

Vielen Dank

Ich werde mich schnellst möglich bei dir melden und freue mich die Einzelheiten in einem persönlichem Gespräch mit dir zu besprechen.

Ben Koss