Wohnimmobilie > Doppelhaushälfte
Verkauft
JEVENSTEDT: Gesundes Wohnen im Neubau - A+ Niedrigenergie-Doppelhaushälfte in ruhiger Seitenstraße
24808 Jevenstedt
374540
2024
130 m²
415 m²
4
GRUNDDATEN: Dieses neu errichtete Doppelhaus steht im südöstlichen Teil von Jevenstedt. Die hier angebotene rechte Haushälfte bietet ca. 130 m² Wohn- und Nutzfläche auf ca. 415 m² Grundstück. Das Haus wurde in Holzbauweise mit vorkonfektionierten Fertigteilen erreichtet und ist nach modernstem Stand gedämmt. Die verwendeten Werkstoffe zeichnen sich durch besondere Schadstoffarmut aus, was für ein gesundes Wohnklima sorgt. Die Grundstückslage in einer kleinen Nebenstraße darf als äußert ruhig bezeichnet werden.
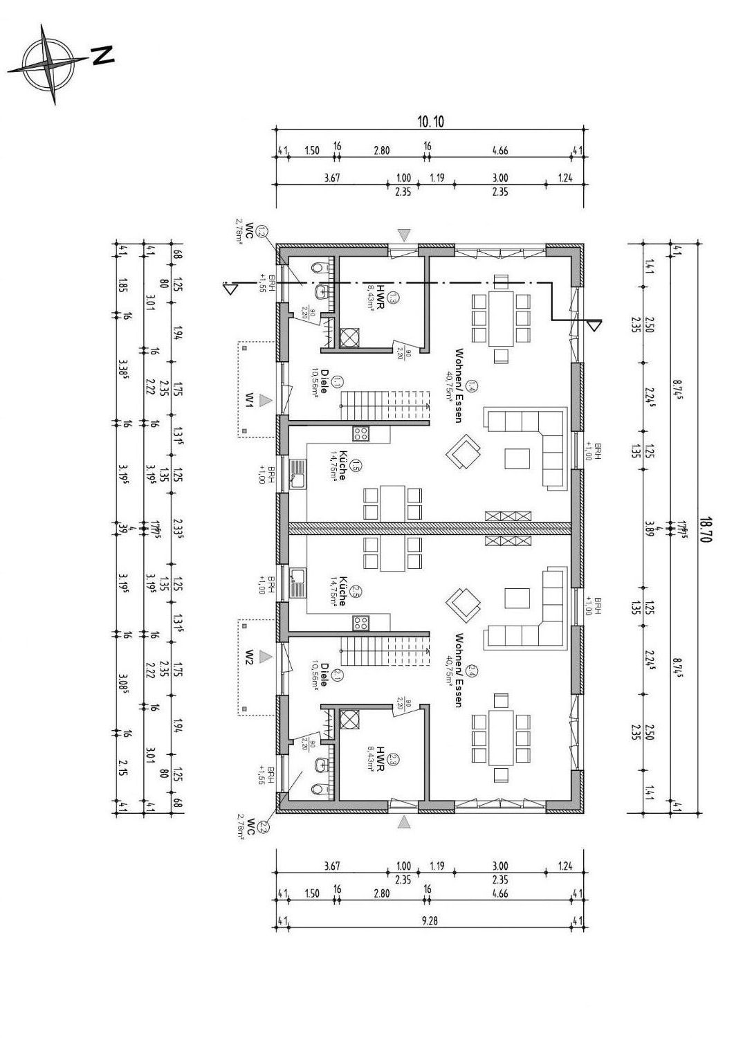
ERDGESCHOSS: Der Eingangsbereich führt in einen angenehm dimensionierten Flur mit Treppe ins Obergeschoss. Vom Flur abgehend findet sich eine praktische Garderobennische mit Durchgang zum Gäste-WC sowie ein Technik- und Hauswirtschaftsraum mit Platz für Waschmaschine und Trockner. Eine Nebeneingangstür führt von hier aus zur Auffahrt. Das große, L-förmige Wohnzimmer bietet eine offene Küchenlösung mit der Möglichkeit, eine Insel oder einen Küchentresen zu platzieren. Die großen Fenster und das Terrassenelement sorgen für viel Tageslicht im Raum.
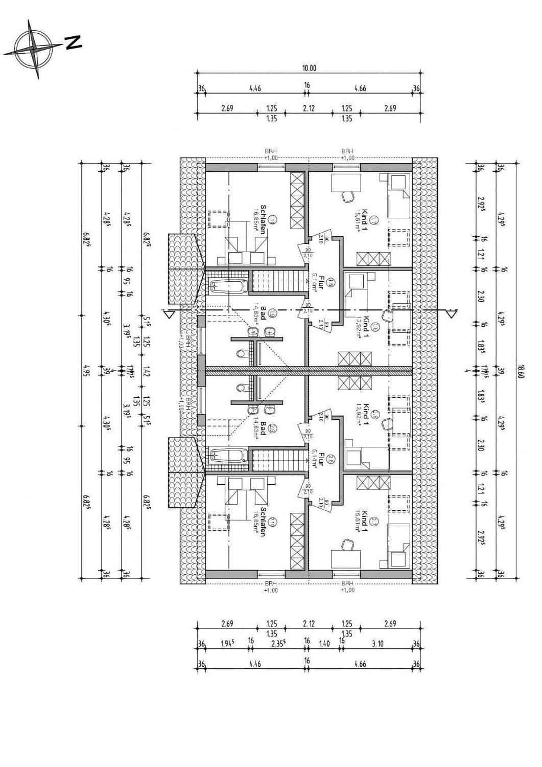
OBERGESCHOSS: Die obere Etage wird über eine Treppe mit Holzstufen und weißem Geländer erreicht. Hier finden sich das Schlafzimmer, zwei große Kinder- oder Arbeitszimmer sowie ein Badezimmer. Alle Räume gehen vom zentralen Flur ab, es gibt also keine Durchgangsräume. Das sehr geräumige Vollbad mit Badewanne und Dusche verschafft dank abgeteiltem Dusch- und WC-Bereich angenehm viel Privatsphäre. Via Dachbodenluke mit Klapptreppe ist der bis in den First hinein gedämmte Spitzboden mit ca. 2,30 m Stehhöhe zugänglich. Hier könnte nach Einbau von Dachfenstern zukünftig bspw. ein Jugendzimmer entstehen.
AUSSTATTUNG/TECHNIK: Jede der Haushälften wird durch eine eigene, moderne Luft-Wasser-Wärmepumpe beheizt. Die Erwärmung sämtlicher Räume erfolgt dabei mittels Fußbodenheizung. Eine im Kaufpreis inkludierte 5,5 kWp starke Photovoltaikanlage liefert einen Großteil des zum Heizen benötigten Stromes. Sämtliche Fenster sind dreifach verglast, innen weiß und außen anthrazit gehalten.
GARTEN/GRUNDSTÜCK: Das gut geschnittene Grundstück umfasst eine Fläche von ca. 415 m². Die seitlich am Haus verlaufende, gepflasterte Auffahrt bietet Platz für ein bis zwei Fahrzeuge und die Möglichkeit, ein Carport zu errichten. Eine bereits montierte Wallbox ermöglicht das komfortable Laden von Elektrofahrzeugen. Im Garten entsteht aktuell eine verklinkerte Trennwand mit einer Höhe von ca. 2 m, die für eine klare Grundstücksabgrenzung sorgt.
SONSTIGES: Bei der Ausstattung wurde besonderer Wert auf hochwertige Materialien und ein zeitloses Design gelegt. Der Fußboden ist mit edlem Laminat in Eiche-Optik gestaltet, das harmonisch auf die Fensterbänke abgestimmt wurde. Weiße Sockelleisten im klassischen Hamburger Profil setzen einen stilvollen Kontrast. Der Verkauf erfolgt ohne Einbauküche, damit die neuen Eigentümer die Möglichkeit haben, Dekor und Materialien ganz nach ihrem persönlichen Geschmack zu wählen.
BESICHTIGUNG: Vereinbaren Sie am besten gleich einen Besichtigungstermin oder fordern Sie weitere Informationen an. Nutzen Sie dafür bitte die schriftliche Kontaktaufnahme hier im Immobilienportal. Auf diese Weise können wir Ihnen im Voraus alle relevanten Unterlagen zukommen lassen. Wir freuen uns darauf, Sie kennenzulernen.
ERDGESCHOSS: Der Eingangsbereich führt in einen angenehm dimensionierten Flur mit Treppe ins Obergeschoss. Vom Flur abgehend findet sich eine praktische Garderobennische mit Durchgang zum Gäste-WC sowie ein Technik- und Hauswirtschaftsraum mit Platz für Waschmaschine und Trockner. Eine Nebeneingangstür führt von hier aus zur Auffahrt. Das große, L-förmige Wohnzimmer bietet eine offene Küchenlösung mit der Möglichkeit, eine Insel oder einen Küchentresen zu platzieren. Die großen Fenster und das Terrassenelement sorgen für viel Tageslicht im Raum.
OBERGESCHOSS: Die obere Etage wird über eine Treppe mit Holzstufen und weißem Geländer erreicht. Hier finden sich das Schlafzimmer, zwei große Kinder- oder Arbeitszimmer sowie ein Badezimmer. Alle Räume gehen vom zentralen Flur ab, es gibt also keine Durchgangsräume. Das sehr geräumige Vollbad mit Badewanne und Dusche verschafft dank abgeteiltem Dusch- und WC-Bereich angenehm viel Privatsphäre. Via Dachbodenluke mit Klapptreppe ist der bis in den First hinein gedämmte Spitzboden mit ca. 2,30 m Stehhöhe zugänglich. Hier könnte nach Einbau von Dachfenstern zukünftig bspw. ein Jugendzimmer entstehen.
AUSSTATTUNG/TECHNIK: Jede der Haushälften wird durch eine eigene, moderne Luft-Wasser-Wärmepumpe beheizt. Die Erwärmung sämtlicher Räume erfolgt dabei mittels Fußbodenheizung. Eine im Kaufpreis inkludierte 5,5 kWp starke Photovoltaikanlage liefert einen Großteil des zum Heizen benötigten Stromes. Sämtliche Fenster sind dreifach verglast, innen weiß und außen anthrazit gehalten.
GARTEN/GRUNDSTÜCK: Das gut geschnittene Grundstück umfasst eine Fläche von ca. 415 m². Die seitlich am Haus verlaufende, gepflasterte Auffahrt bietet Platz für ein bis zwei Fahrzeuge und die Möglichkeit, ein Carport zu errichten. Eine bereits montierte Wallbox ermöglicht das komfortable Laden von Elektrofahrzeugen. Im Garten entsteht aktuell eine verklinkerte Trennwand mit einer Höhe von ca. 2 m, die für eine klare Grundstücksabgrenzung sorgt.
SONSTIGES: Bei der Ausstattung wurde besonderer Wert auf hochwertige Materialien und ein zeitloses Design gelegt. Der Fußboden ist mit edlem Laminat in Eiche-Optik gestaltet, das harmonisch auf die Fensterbänke abgestimmt wurde. Weiße Sockelleisten im klassischen Hamburger Profil setzen einen stilvollen Kontrast. Der Verkauf erfolgt ohne Einbauküche, damit die neuen Eigentümer die Möglichkeit haben, Dekor und Materialien ganz nach ihrem persönlichen Geschmack zu wählen.
BESICHTIGUNG: Vereinbaren Sie am besten gleich einen Besichtigungstermin oder fordern Sie weitere Informationen an. Nutzen Sie dafür bitte die schriftliche Kontaktaufnahme hier im Immobilienportal. Auf diese Weise können wir Ihnen im Voraus alle relevanten Unterlagen zukommen lassen. Wir freuen uns darauf, Sie kennenzulernen.
Flächen
- Wohnfläche: 130 m²
- Grundstücksfläche: 415 m²
- Zimmer insgesamt: 4
- Schlafzimmer: 3
- Badezimmer: 1
- Separate WCs: 1
- Stellplatzart: Freiplatz
Ausstattung
- Heizungsart: Zentralheizung
- Befeuerung: Luft-Wärmepumpe
- Bodenbelag: Fliesen, Laminat
- Badausstattung: Dusche, Badewanne, Fenster
-
Dachboden
-
Kabel/Sat-TV
Zustand & Erschließung
- Baujahr: 2024
- Bauweise: Fertigteile
- Dachform: Satteldach
Sonstiges
- Immobilie ist verfügbar ab: sofort
Energieeffizenz
- Energieausweis-Art: Bedarf
- Energieausweis gültig bis: 13.06.2034
- Warmwasser im Energieverbrauch enthalten: ja
- Endenergiebedarf: 16,30 kWh/(m²*a)
- Primärenergieträger: Luft-Wärmepumpe
- Energieeffizienzklasse: A+
- Energieausweis-Jahrgang: ab Mai 2014
- Energieausweis-Gebäudeart: Wohngebäude
Lage und Infrastruktur
Jevenstedt ist eine idyllische Gemeinde im Kreis Rendsburg-Eckernförde mit rund 3.500 Einwohnern. Die Lage südlich von Rendsburg, direkt unterhalb des Nord-Ostsee-Kanals, sorgt für eine perfekte Balance zwischen ländlichem Charme und einer gut angebundenen Infrastruktur. Einkaufsmöglichkeiten, Schulen, Kitas und gemütliche Gastronomiebetriebe sind direkt vor Ort und machen Jevenstedt besonders lebenswert.
Verkehrstechnisch ist die Gemeinde hervorragend angebunden: Die B77 durchquert das Gemeindegebiet und verbindet es in Nord-Süd-Richtung mit Itzehoe und der A23. Über die L328 erreicht man Neumünster, während das Autobahnkreuz Rendsburg mit Anbindung an die A7 nur etwa 15 Minuten entfernt liegt.
- Distanz zum Flughafen: 85,0 km
- Distanz zum Fernbahnhof: 10,0 km
- Distanz zur Autobahn: 13,0 km
- Distanz zu Bushaltestelle: 0,1 km
- Distanz zum Kindergarten: 1,9 km
- Distanz zur Grundschule: 1,9 km
- Distanz zu Einkaufsmöglichkeiten: 1,0 km
- Distanz zu Gaststätten: 1,2 km