Wohnimmobilie > Rohdachboden
Zu Verkaufen

RESERVIERT! Einzigartige Gelegenheit: Dachbodenrohling in Hassee mit Baugenehmigung

Rendsburger Landstraße 88a, 24113 Kiel
54.000 €

381047
54 m²
2
Einzigartige Gelegenheit: Dachgeschoss-Rohling in Top-Lage

 
RESERVIERT!

Träumen Sie von einem individuellen Zuhause, das Sie von Grund auf selbst gestalten können? Dann ist dieses Angebot genau das Richtige für Sie! Wir präsentieren Ihnen einen Dachgeschoss-Rohling in einem gepflegten 10-Familienhaus.

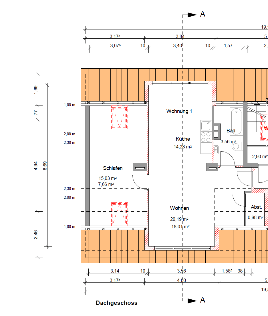
Mit einer großzügigen Wohnfläche von 54,05 m² bietet diese Fläche die ideale Grundlage, um Ihre persönlichen Wohnträume zu verwirklichen. Die vorliegende Baugenehmigung bedeutet für Sie: Sofort starten statt warten! Es gibt keine langen Genehmigungsverfahren, die den Baubeginn verzögern.

Gestalten Sie den Grundriss nach Ihren Vorstellungen – ob offenes Wohnkonzept mit integrierter Küche, ein gemütliches Schlafzimmer mit Ankleidebereich oder ein modernes Bad. Die Gestaltungsmöglichkeiten sind grenzenlos.

 
Ihre Vorteile auf einen Blick:

 

Vollkommene Gestaltungsfreiheit: Von der Raumaufteilung bis zur Wahl der Materialien – Sie bestimmen jedes Detail.


Keine Wartezeit: Die Baugenehmigung liegt bereits vor. Sie können sofort mit der Planung und dem Ausbau beginnen.


Wertsteigerungspotenzial: Investieren Sie in eine Immobilie, deren Wert Sie durch den individuellen Ausbau maßgeblich steigern können.


Attraktive Lage: Das 10-Familienhaus befindet sich in einer ansprechenden Nachbarschaft, die eine hohe Lebensqualität verspricht.


Nutzen Sie diese seltene Chance, ein einzigartiges Zuhause zu schaffen, das perfekt auf Ihre Bedürfnisse zugeschnitten ist. Nehmen Sie noch heute Kontakt mit uns auf, um weitere Informationen zu erhalten und einen Besichtigungstermin zu vereinbaren.

Ihr neues Leben beginnt hier.

Flächen

  • Wohnfläche: 54,05 m²
  • Vermietbare Fläche: 54,05 m²
  • Wohneinheiten: 1.00
  • Zimmer insgesamt: 2
  • Schlafzimmer: 1
  • Badezimmer: 1
  • Etagen: 3
  • Etage: 3

Ausstattung

Der Ausbau dieses Dachgeschoss-Rohlings bietet Ihnen die einmalige Gelegenheit, jedes Detail nach Ihren Vorstellungen zu gestalten. Während die Baugenehmigung die Grundstruktur festlegt, haben Sie bei der Ausstattung freie Hand, um Ihre persönliche Wohlfühloase zu schaffen.

 

Großzügiger Wohn- und Essbereich

 

Planen Sie einen offenen Wohnbereich, der viel Licht und eine luftige Atmosphäre bietet. Großzügige Dachfenster können hier für Helligkeit sorgen und den Raum optisch vergrößern. Bei der Bodengestaltung können Sie zwischen modernem Parkett, eleganten Dielen oder pflegeleichten Fliesen wählen, je nach gewünschtem Stil und Budget.

 

Ihre Traumküche

 

Die Küchenplanung kann ganz nach Ihren Bedürfnissen erfolgen: Eine kompakte Küchenzeile für Minimalisten, eine offene Wohnküche mit Kochinsel für Hobbyköche oder eine elegante Einbauküche mit modernsten Geräten – alles ist möglich.

 

Badezimmer nach Wunsch

 

Gestalten Sie Ihr Badezimmer als Ort der Entspannung. Ob eine geräumige begehbare Dusche, eine freistehende Badewanne oder ein Doppelwaschbecken – Sie haben die Wahl. Bei den Fliesen, Armaturen und Sanitäranlagen können Sie auf Qualität setzen, um ein langlebiges und stilvolles Ergebnis zu erzielen.

 

Individuelle Schlafräume

 

Schaffen Sie einen Rückzugsort, der Ruhe ausstrahlt. Ob ein separates Schlafzimmer mit Ankleidebereich oder eine offene Schlafgalerie unter dem Dach – Sie entscheiden, wie Sie den Platz am besten nutzen.

 

Smarte Haustechnik

 

Nutzen Sie die Chance, von Anfang an in moderne Technik zu investieren. Eine Fußbodenheizung, eine effiziente Lüftungsanlage oder Smart-Home-Lösungen zur Steuerung von Licht und Temperatur können den Wohnkomfort erheblich steigern und den Energieverbrauch senken.

 

Zusammenfassung der Ausstattungsmöglichkeiten:

 


Bodenbeläge: Parkett, Dielen, Fliesen


Küchenausstattung: Von der kompakten Küchenzeile bis zur hochwertigen Einbauküche


Badezimmer: Begehbare Dusche, Badewanne, moderne Sanitäranlagen


Haustechnik: Fußbodenheizung, Smart-Home-Lösungen, effiziente Beleuchtung


Türen und Fenster: Individuelle Wahl von Innentüren und Dachfenstern

Gestalten Sie jetzt den Grundstein für Ihr persönliches Traumzuhause.

  • Heizungsart: Zentralheizung
  • Befeuerung: Gas
  • Breitband-Internetzugang
  • Kabel/Sat-TV
  • UMTS-Empfang

Sonstiges

  • Wohnungsnummer: 9
  • Immobilie ist verfügbar ab: sofort

Energieeffizenz

  • Energieausweis-Art: Verbrauch
  • Energieausweis gültig bis: 09.06.2031
  • Energieverbrauchskennwert: 225,2 kWh/(m²*a)
  • Warmwasser im Energieverbrauch enthalten: nein
  • Primärenergieträger: Gas
  • Energieeffizienzklasse: G
  • Energieausweis-Jahrgang: ab Mai 2014
  • Energieausweis-Gebäudeart: Wohngebäude

Preise

  • Kaufpreis: 54.000 €
  • Kaufpreis pro m²: 1.000 €
  • Hausgeld: 244 €
  • Preise zuzüglich Mehrwertsteuer: nein
  • Käuferprovision: provisionsfrei

Lage und Infrastruktur

In einem Dachgeschoss-Rohling in der Rendsburger Landstraße 88a in Kiel haben Sie die Möglichkeit, Ihr persönliches Reich zu erschaffen. Das Haus liegt in einem belebten Teil von Kiel, der durch seine hervorragende Infrastruktur und Verkehrsanbindung besticht.

 

Die Lage im Überblick

 


Verkehrsanbindung: Die Rendsburger Landstraße ist eine Hauptverkehrsader, die Sie schnell und unkompliziert mit allen Teilen der Stadt verbindet. Ob mit dem Auto oder mit öffentlichen Verkehrsmitteln – Sie sind stets mobil.


Einkaufsmöglichkeiten: In der unmittelbaren Umgebung finden Sie eine Vielzahl von Supermärkten, Geschäften und Dienstleistern, die Ihren täglichen Bedarf abdecken.


Freizeit und Erholung: Auch die Natur ist nicht weit entfernt. Parks und Grünflächen laden zu Spaziergängen oder sportlichen Aktivitäten ein und bieten einen willkommenen Ausgleich zum städtischen Leben.


Wirtschaftsstandort: Die Gegend zeichnet sich zudem durch eine vielfältige Mischung aus Gewerbe und Wohnen aus, was die Attraktivität und Stabilität der Lage unterstreicht.

Nutzen Sie diese Gelegenheit, um in einer dynamischen Umgebung ein Zuhause zu schaffen, das alle Annehmlichkeiten des Stadtlebens bietet, ohne auf die Ruhe und den Komfort eines individuellen Rückzugsortes verzichten zu müssen.

  • Lage/Gebiet: Wohngebiet
  • Distanz zum Fernbahnhof: 2,0 km
  • Distanz zur Autobahn: 1  km
  • Distanz zu U/S-Bahn-Haltestelle: 0,8 km
  • Distanz zu Bushaltestelle: 0,0 km
  • Distanz zum Kindergarten: 0,3 km
  • Distanz zur Realschule: 4,3 km
  • Distanz zu Einkaufsmöglichkeiten: 0,4 km
  • Distanz zu Gaststätten: 0,5 km

Vielen Dank

Ich werde mich schnellst möglich bei dir melden und freue mich die Einzelheiten in einem persönlichem Gespräch mit dir zu besprechen.

Ben Koss